Tout comprendre sur l’électricité et la domotique pour un habitat sûr et intelligent.

Votre ressource incontournable pour tout savoir sur l’électricité et la domotique. Que vous soyez curieux, bricoleur ou professionnel, nos guides, astuces et actualités vous aideront à mieux comprendre et optimiser votre habitat.

Vidéos

“Apprenez l’électricité et la domotique à votre rythme grâce à nos tutoriels vidéos clairs et pratiques.”

explore image

Schéma d'un circuit de prises

Résumé des principales règles concernant les schémas de circuits de prises électriques selon la norme NF C 15-100

explore image

Brancher un va-et-vient

Le va-et-vient permet de contrôler une lumière depuis 2 interrupteurs. Comment réaliser ce type de branchement

explore image

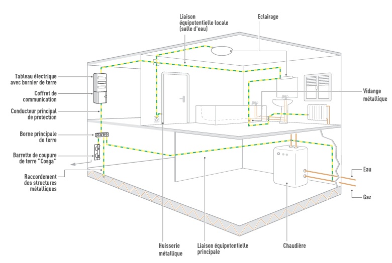
Rôle d'une barrette de coupure

Une barrette de coupure est essentiel dans une installation, utilisé pour les systèmes de mise à la terre

explore image

Section minimale des câbles de terre

elle dépend de la section des conducteurs de phase dans le circuit, selon les recommandations de la norme NF C 15-100

explore image

Int. différentiel 30mA type A ou AC ?

Le choix entre un int. diff. type A ou type AC, 30 mA, dépend des équipements électriques que vous souhaitez protéger

explore image

Qu'est-ce qu'un disjoncteur divisionnaire ?

Il protège l'installation électrique de tout court-circuit...

Schémas et plans de câblage

Voici les principaux schémas électriques qui vous aideront dans vos travaux d'installation

appareils de protection

Dispositifs de protection électrique

Dans une installation électrique domestique, plusieurs dispositifs de protection sont indispensables pour garantir la sécurité des occupants et des équipements.

blog image

Le tableau électrique

Le tableau électrique est le cœur de l’installation électrique d’une maison. Il regroupe tous les circuits, protège les personnes et les équipements, et permet une gestion claire et sécurisée de l’électricité dans l’habitat.

blog image

Les circuits électriques

Un circuit électrique est la base de toute installation électrique. Il s'agit d'un chemin fermé où l'électricité circule pour alimenter des appareils ou des systèmes. Comprendre les circuits électriques est essentiel pour concevoir, utiliser ou réparer une installation électrique, que ce soit dans une maison, une entreprise ou un projet domotique.

Guides pratiques

Certification B1 électricien Partie Théorique

"Les dangers de l'électricité" "Effets du courant électrique sur le corps humain électrisation, électrocution, brûlures"

"Les domaines de tension "

"Les zones d'environnement électrique"

Certification B1V électricien Partie Théorique

Focus spécifique sur le travail au voisinage de pièces nues sous tension B1V

"Les distances de sécurité et les limites de la zone de voisinage"

"Choix et utilisation des Equipements de Protection Individuelle EPI"

QCM

Test Habilitation Électriques B1 B1V :

"QCM"

"QCM2""QCM3"

Le Consuel : obligations, démarches et informations

"Le Consuel est-il obligatoire ? Dans quels cas ?" "À quoi sert l'attestation Consuel ?" "Que se passe-t-il si je n'ai pas l'attestation Consuel ?"

"Le Consuel est-il obligatoire en cas de simple rénovation électrique"

"Comment remplir l'attestation de conformité Consuel ?"

Comment choisir le disjoncteur abonné adapté à mon installation électrique ?

Le disjoncteur abonné, aussi appelé disjoncteur de branchement.

"À quoi sert le disjoncteur de branchement ?"

"Quelle puissance choisir ?"

FAQ

FAQ : Réponses aux questions fréquentes sur l’électricité et la domotique..